左右旋正反牙絲桿特征和應用
說明:滾珠絲桿、直線導軌、電機座pdf+cad+3d等圖紙請聯系客服索取,謝謝!
特征和應用: |
|
|
1、高速進給: 以最佳化雙圓弧接觸式牙型設計,配合循環路徑曲率連續性,修正因滾珠高速回轉的離心力效應之滾道面外形,具有高速進給(高DN值)、高加速度與高剛性之性能。進給速度達到90 m/min以上,Dm-N值達15萬以上。 2、高定位精度: 高精度等級需求達JIS C3級以上。 高剛性:最佳化螺桿牙型與結構設計。 高負載:以多卷數連續循環鋼珠系統達到多負荷滾珠分布,使成為高負載之滾珠絲桿。 3、低振動噪音: 以最佳細長比與循環結構設計。 4、加速度: 1.0g (9.8m/SEC^2)以上。 恒溫設計:最佳化散熱設計,有效抑制因高速而產生之熱變形。 5、環保化設計: 搭配自潤式理念,以環?;母拍畛晒迷跐L珠螺桿的開發上,亦可解決因高速運動下螺旋滾道面潤滑油膜變形造成潤滑不均的現象。
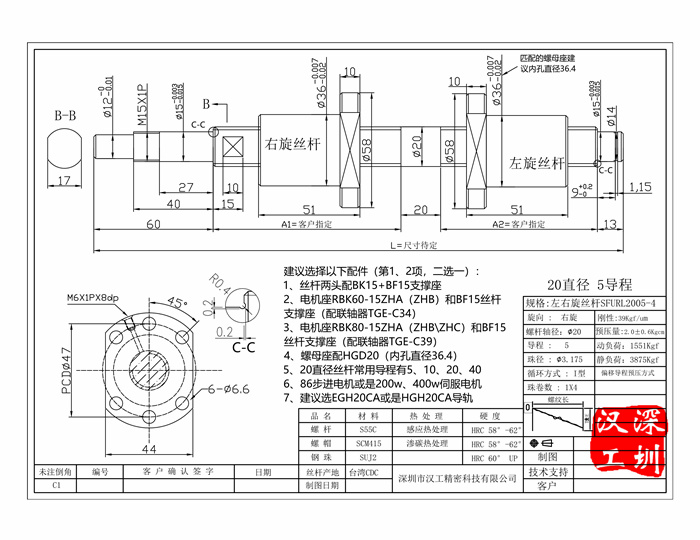
16直徑5導程絲桿
![]() 20直徑5導程絲桿
![]() 25直徑5導程絲桿
32直徑5導程絲桿
![]() ![]() ![]() ![]() ![]() ![]() ![]() ![]() 其他規格請聯系客服索取資料PDF+CAD+3D圖 |












